andrionov@gmx.de
jetboat.pro motor-bolotokhod.ru

"Речной квадрик"- пока только проект

"Речной квадрик"- пока только проект

Сообщение дядя Вася » 10 мар 2012, 08:11

Коротко.
1. Предыстория.
В теме "одноместный джет" есть новозеландские ролики , про небольшую лодочку с силовой установкой от "гидрика".
Один мой знакомый...сварил себе...но не похожа "чуток", корпус у него...сделан по "своим собственным понятиям"...хотя мы с ним долго обсуждали его " лодочные тараканы", дал ему почитать книжку "Справочник по малотоннажному судостроению" .Мотор -Кавасаки 750 куб 70 лс.
На днях будет сбрасываться, как только чуток потеплеет. Фотки - сам покажет или я покажу (с его позволения конечно).
2. Основная часть.
Изучаю буржуинский опыт, отмечаю БОЛЬШОЙ интерес форумных пользователей к "суперлодке Крюгера" ....ну и имея небольшой собственный опыт постройки лодок..... "есть такая мысль - и я её думаю" ;) .
Замутить проект с Нуля - то есть сделать крой, сварить корпус под доступныые моторы - а именно от "гидриков" с доработками, для "богатыХ" - доступен WEBER-750MPE "сотка" на выхлопе.
Размер лодки - завязан на длину стандартного листа 4000мм то есть где-то около 3700-3800мм ширина наибольшая около 1600мм (чтобы рядом посадить двух чел, нормального телосложения).Лист - 4 мм днище, 3 мм борт, усиление днища как у Зеландцев - доп опция, еще 3-4 мм на болтах и "сикафлекс". Хотя вот - приклеил плиту на немецкий бытовой герметик из " OBI"...снять не смог....ни зубилом, ни нагревом с зубилом..никак. ;)

В этот размер впихнётся - два нормальных кресла, небольшой багажник,дуга безопасности -на некоторых лодках стоит, на нее светотехника, спининг удобно крепится, ну наверное не надо обьяснять что это лодка выходного дня?
( НО без ограничения по слипам, удобная доставка суперДжипами типа Джимник-Нива-КалинаМалина в несудоходные места)
-это может быть только "крой на диске" ( сколько по деньгам не знаю - компьютерщик пока не назвал цену)
- крой металла в развёртках или уже гнутый (тоже не понятно пока, сколько возьмет плазморезчики и гибщики)
- корпус под достройку

ну итд.

Если есть КОНСТРУКТИВНЫЕ СООБРАЖЕНИЯ - интересно послушать.

( обычную лабуду строчить не надо , типа - "Мне такая нах. не нужна - негде спать втроём" или " " У нас все на "мётлах с улитками " рассекают и все щастливы" :D )
дядя Вася
 
Сообщений: 4931
Зарегистрирован: 21 янв 2010, 10:11

Re: "Речной квадрик"- пока только проект

Сообщение S_Boroda » 10 мар 2012, 10:54

Есть достаточно старый проект водометного катера Мурена.
Если для более правильного исполнения из АМГ убрать с дна брызгообойники по сочленению борта и дна, точнее выполнить их в виде дополнительного редана.
Плита там очень хорошо вписывается в проект, а с ее размерами можно поиграть. Хотя штатный проект под водомет не имел плиты.
Кроме этого убрано сужение корпуса к корме. Габаритные размеры 4000 мм на 1650 мм. Высота борта на миделе 670 мм.
Если поставить туда движок от гидрика, ну долустим Ротакс, он хорошо вписывается в капотной компановке, при этом еще и остается место на два сидения сзади (от бортов до капота движка, так как нет смысла перекрывать всю корму).
По всем расчетам получается на 4=х человек, да и разрешенная мощность по проекту 30-70 сил.
Весь раскрой укладывается в лист 4 м.
Расчетные данные по весу пустого корпуса при плите 4 мм, борта и пр.- 3 мм около 140 кг.
Блоки плавучести 390 л.
Да и регистрировать данный проект в ГИМСе будет достаточно легко.
Считал сам во Фри Шипе, раскрой есть.
S_Boroda
 
Сообщений: 381
Зарегистрирован: 22 янв 2012, 19:36

Re: "Речной квадрик"- пока только проект

Сообщение S_Boroda » 10 мар 2012, 11:05

Плиту можно выполнить любой формы. Тут для примера показано.
По носовой палубе, стеклу возможно много вариантов.
http://www.vodnyimir.ru/Vodometnyi_kater_Murena.html Ссылка на чертежи оригинала.
Вложения
mur-ver1-gidro_Linesplan.jpg
S_Boroda
 
Сообщений: 381
Зарегистрирован: 22 янв 2012, 19:36

Re: "Речной квадрик"- пока только проект

Сообщение дядя Вася » 10 мар 2012, 20:01

1.Лист Амг - 4000мм, значит длина уже .... не может быть 4000мм.
2. Технология металла - в данном случае Амг, нужно свести до минимума сварочные швы, это даёт как минимум экономию по затратам на сварку, а в основном - нормальный внешний вид, без сварочных поводок.
Поэтому" фанерные проекты".... не канают. ;)
3. Я не сторонник "ананнирования на всё импортное" - но изучать врагов не стеснялись ни Королёв, ни Калашников, ни...ну очень многие авторитеты. ;)
дядя Вася
 
Сообщений: 4931
Зарегистрирован: 21 янв 2010, 10:11

Re: "Речной квадрик"- пока только проект

Сообщение дядя Вася » 10 мар 2012, 20:18

пример.
"лыжа" - может быть только треугольной формы(гибочный пресс может гнуть только по прямой) и длина её ограниничена ДЛИНОЙ гибочных пуансонов-матриц.
Так понятней? ;)
Вложения
photo-12.jpg
дядя Вася
 
Сообщений: 4931
Зарегистрирован: 21 янв 2010, 10:11

Re: "Речной квадрик"- пока только проект

Сообщение дядя Вася » 10 мар 2012, 20:33

вот самый информативный ролик на эту тему.
http://www.youtube.com/watch?v=fbw9p1X7 ... re=related
дядя Вася
 
Сообщений: 4931
Зарегистрирован: 21 янв 2010, 10:11

Re: "Речной квадрик"- пока только проект

Сообщение S_Boroda » 10 мар 2012, 21:39

Данный чертеж представлен только потому, что он раскрашен.
По поводу треугольной лыжи не вопрос. Расссматривал австралийские проекты, так все есть, хотя мне кажется (да и расчеты подтверждают) что у них лыжа сильно расширена к корме. А это требует избыточной мощности движка.
Данный проект в основе не фанерный.
Швы тут сведены к миниуму.
По поводу длины ты прав, фактом получается 3960. Если делать длину точно 4000 мм, то длина выкройки 4095 мм, так что смысла нет. При чем это касается только борта, так как лыжа, дно и фальшборт короче и входят легко в 4000 мм лист.
Иностранные проекты смотрел и не один. Просто думаю, что нельзя скатываться только к покатушечному варианту, должна быть и какая то мореходность, всхожесть на волну. И еще раз повторюсь, в частности австралийские и америкосовские варианты грешат избыточной мощностью движка, нам же желательно уложиться в диапазон 70-150 л/с (по моему мнению самы распространеные гидрики).
S_Boroda
 
Сообщений: 381
Зарегистрирован: 22 янв 2012, 19:36

Re: "Речной квадрик"- пока только проект

Сообщение S_Boroda » 11 мар 2012, 11:55

дВ, всё по Вашим пожеланиям! :D
Что то еще исправить?
Вложения
mur-ver2-gidro_Linesplan.jpg
S_Boroda
 
Сообщений: 381
Зарегистрирован: 22 янв 2012, 19:36

Re: "Речной квадрик"- пока только проект

Сообщение S_Boroda » 11 мар 2012, 11:59

Вот кстати переделка под подвесник. Проект не мой, просто для примера.
Вложения
мурена_Linesplan.jpg
S_Boroda
 
Сообщений: 381
Зарегистрирован: 22 янв 2012, 19:36

Re: "Речной квадрик"- пока только проект

Сообщение denis saveliev » 12 мар 2012, 11:31

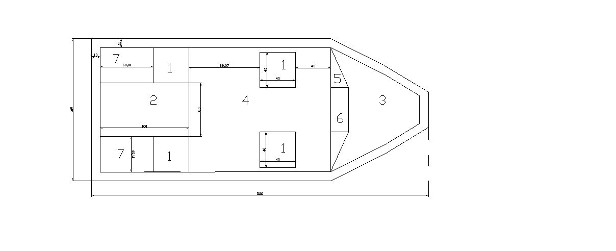
Не судите строго, но порисовав в автокаде, в заданные размеры, как мне думается умещается и 4-х местный вариант. Может более утилитарный вариант "речного квадрика" будет интересней? Ну чтоб не только покататься в выходные, а и на охоту-рыбалку? Не на двух недельный поход естественно, а на однодневный семейный выезд (папа, мама и детишки). Двигателя гидрика (к примеру Ротакс 717, 2т, 90 сил вполне хватает чтоб выпулить на глиссер 4 тела и небольшой груз, и скорость вполне приличная (по опыту своего"чудо-коня" :D корпус которого достаточно тяжелый (300 кг) и чуть больше предлагаемых габаритов.
на рисунке цифрами обозначено: 1) - сиденья; 2) моторный отсек (под двигатель и водовод, мой ротакс в эти размеры помещается); 3) самоотливной носовой кокпит; 4) кокпит; 5) остекление; 6) калитка; 7) рундуки за задними сиденьями под аккумулятор, бак и всякий скарб нехитрый
речной квадрик.jpg
размеры в см
Аватар пользователя
denis saveliev
 
Сообщений: 157
Зарегистрирован: 01 июн 2010, 09:48
Откуда: Саратов

След.

Вернуться в Водометные катера и Джет багги

Кто сейчас на форуме

Сейчас этот форум просматривают: нет зарегистрированных пользователей и гости: 7


cron